• Sale
€1,500,000
Reference: R5274217

Plot, Mijas

  • Plot size

    6009m²

Description

Urban Development Land – Mijas Pueblo – Costa del Sol.

Magnificent urban plot for sale in a highly sought-after area. The plot is surrounded by mature trees, ensuring privacy. One minute by car from the centre of Mijas Pueblo.

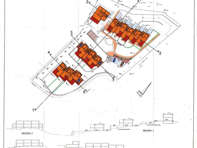
A Detailed Development Study ("Estudio de Detalle) has already been approved to build 11 townhouses and 1 villa.
________________________________________
Technical Data:

• The plot is located in sector U.E. S-19 of Mijas
• It complies with all boundary limits established in the alignment plans
• Total surface area: 6,008.89 m² according to IBI records (4,188.89 m² + 1,820.00 m²)
________________________________________
According to the Mijas PGOU, the following construction limits apply:

• Building coefficient: 0.35 m²/m²
• Number of permitted properties: 1 residence per 500 m²
• Maximum number of floors: 2

TOTAL BUILDABLE AREA ACCORDING TO PGOU: 2,103.11 m² (maximum 12 dwellings)
________________________________________
The approved Detailed Development Study proposes:

• Buildable area: 1,918.74 m²
• Number of dwellings: 12
• Maximum height: 2 floors
• Plot coverage: 21.14%
• Parking spaces: 18
________________________________________
The PGOU classifies the plots as AIS-3. According to Article 229, section 4b of the PGOU, developments of semi-detached single-family housing (ADS) are permitted, processed through a Detailed Development Study.
The minimum plot size required for such developments in the AIS-3 Subzone is 4,000 m². In this case, the plot has 6,008.89 m².

Features

Specifications

Features

Orientation:
  • South
  • South East
Utilities:
  • Electricity
  • Drinkable Water
Security:
  • Gated Complex
Views:
  • Panoramic
  • Country
  • Mountain
  • Sea
Pool:
  • Room For Pool
Condition:
  • New Construction
Setting:
  • Close To Forest
  • Close To Schools
  • Close To Shops
  • Mountain Pueblo
  • Village
Category:
  • Resale
  • Off Plan
  • Investment
Property Finder

Location

  • Town
  • Mijas
  • Province
  • Málaga

Specifications

Features

Orientation:
  • South
  • South East
Utilities:
  • Electricity
  • Drinkable Water
Security:
  • Gated Complex
Views:
  • Panoramic
  • Country
  • Mountain
  • Sea
Pool:
  • Room For Pool
Condition:
  • New Construction
Setting:
  • Close To Forest
  • Close To Schools
  • Close To Shops
  • Mountain Pueblo
  • Village
Category:
  • Resale
  • Off Plan
  • Investment

You may also like