• Myynti
€1,295,000
Viite: R5338399

Liikekiinteistö, Málaga

  • Rakennuksen koko

    150m²

Kuvaus

Located on one of the most picturesque streets in Málaga's historic centre, Calle San Juan, this characterful building offers a rare combination of immediate income and exceptional development potential. With its rooftop overlooking the magnificent tower of Church of San Juan, the property captures the timeless atmosphere of Málaga's old town.

Current Layout & Income
The ground floor is already fully activated with two street-facing commercial units: A charming café and luggage storage shop catering to the steady flow of visitors in the area

Both businesses are operating and together generate a significant annual return based on current leases to 2033, providing investors with a strong, secure income from day one.

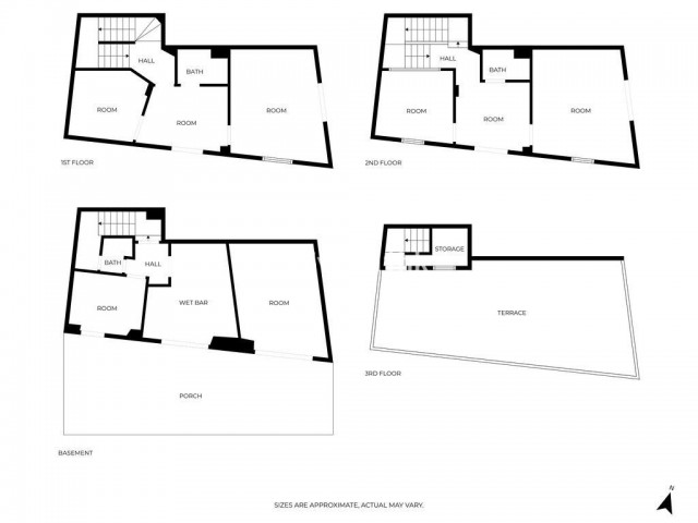
Upper Floors – Renovation Potential
Above the commercial units are two residential floors of approximately 42 m² each, currently divided into three rooms and a possible bathroom per level. These floors require full renovation but retain wonderful original features that could be restored to create distinctive living spaces, including: beautiful original Málaga tiles,
some original doors and windows, authentic shutters, characterful proportions typical of historic buildings

With thoughtful design, these floors could be transformed into stylish apartments, boutique rentals, or an elegant duplex residence.

The rooftop terrace is simply spectacular. From here, the view of the historic tower of Church of San Juan creates a magical backdrop.
This space offers significant opportunities to add value, whether as a private terrace, rooftop lounge, or unique outdoor entertaining area.

This is an investment not to be missed for a buyer with vision and creativity—offering guaranteed returns from the start and exciting possibilities for value creation in a vibrant historic city.

Ominaisuudet

Kohteen tiedot

Ominaisuudet

Näkymä:
  • Kaupunkimainen
Property Finder

Sijainti

  • Alue
  • Málaga
  • Maakunta
  • Málaga

Kohteen tiedot

Ominaisuudet

Näkymä:
  • Kaupunkimainen

Saattaisit myös pitää ...